Cửa Đi Mở Lùa Aluprof MB-Skyline Cánh Khủng
- Lớp thấm khí 3, EN 12207
- Độ kín nước lên đến lớp 9A (600Pa), EN 12208
- Khả năng chịu tải gió lên đến cấp C5 (2000Pa), EN 12210
- Cách nhiệt U W từ 0,85 W / (m 2 K) *
Cửa đi mở lùa Aluprof MB-Skyline với khung vô hình là thiết kế độc nhất vô nhị và chúng giúp nâng tầm cho bất cứ công trình nào. Với một thiết hiện đại và tối giản, cửa nhôm Alurprof mang đến vẻ độc đáo mà khó có dòng nhôm nào có thể so sánh được.
Đặc điểm của cửa đi mở lùa Aluprof MB-Skyline
MB-Skyline thể hiện đúng như cái tên của nó là hệ cửa trượt cao cấp Aluprof khi mang đến một giải pháp không gian không gian hạn giữa nội thất và ngoài trời. Cửa đi mở lùa MB Skyline mang đến những trải nghiệm tuyệt vời cho người dùng về thế giới xung quanh bằng một cánh cửa rất lớn. Dù vậy, chúng lại được kết cấu bởi những thanh Profile nhôm thanh mảnh, nhưng cực kỳ chắc chắn để mang đến sự nhẹ nhàng, tế.
- Một cánh cửa MB Skyline có thể nặng tới 700kh và cao tới 4m
- Thiết kế hiện đại và tính thẩm mỹ cao nhờ phần khung được giấu âm trong tường, âm sàn và trần nhà
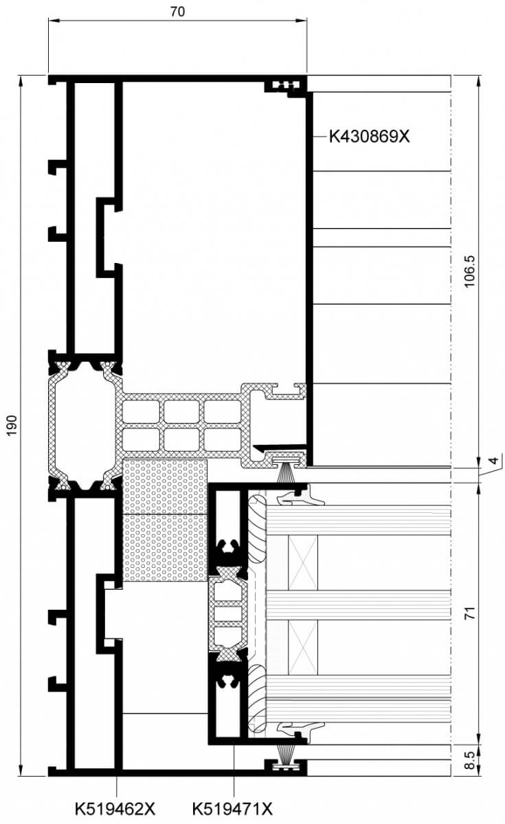
- Cấu hình có độ sâu 71 mm (lá), 190 mm (khung 2 ray) và 292 mm (khung 3 ray)
- Biên dạng khung được căn chỉnh hoàn toàn ở các cạnh
- Chiều rộng liên kết nhìn thấy của các lá cửa là 25 mm.
- Cấu hình 3 ngăn, cách nhiệt
- Đơn vị kính ba lớp dày 52 đến 60 mm
- Cửa mở bằng tay hoặc tự động
- Các ổ đĩa và bộ điều khiển được giấu trong các cấu hình khung
- Có thể sử dụng thiết bị tự động gắn bên ngoài công trình
- Không có hạn chế về chiều rộng của công trình, các cửa có thể được kết nối với nhau, tạo thành một bề mặt lắp kính liên tục
>>>Xem thêm: Review chi tiết công trình cửa nhôm MB-Skyline Aluprof
Các mẫu cửa lùa đẹp dành cho ngôi nhà hiện đại
Cửa đi lùa được vận hành bằng cách mở trượt sang 2 bên nhờ hệ thống bánh xe hoặc ray treo. Cửa lùa thường trượt trên một đường ray cố định và được sử dụng cho những vị khí không gian nhà không có không gian quay cửa. Các công trình thường sử dụng cửa đi mở trượt nhiều nhất có thể kể đến như: cửa đi mở lùa cho nhà hàng, cửa đi mở lùa quán cà phê, cửa đi mở lùa cho ban công, cửa đi mở lùa ra hồ bơi,..

Cửa lùa giúp tiết kiệm và tối ưu không gian, giúp căn nhà lấy được nhiều ánh sáng nhất, tạo cảm giác không còn ngăn cách giữa tự nhiên và nội thất. Đây cũng là một cách để tiết kiệm năng lượng hiệu quả.
Thông tin liên hệ đơn vị thi công cửa nhôm Aluprof
Để được tư vấn thêm về các dòng cửa đi mở lùa Aluprof, giá cửa đi mở trượt 2 cánh, cửa đi lùa 4 cánh, và các dòng cửa nhôm cao cấp nhập khẩu từ Châu Âu… mời bạn liên hệ đến hotline: 0375599766 hoặc kết nối cùng nhôm kính Topvis – Đơn vị thi công cửa nhôm kính hàng đầu tại Việt Nam
- Hotline: 0375599766
- Fanpage: https://www.facebook.com/Aluprof.098.133.6929
- Youtube: https://www.youtube.com/channel/UCnCX0jKPmLvtmjeb-A6EnHg/videos
- Địa chỉ văn phòng: Số 16 liền kề 21 khu đô thị mới Phú Lương – Phường Phú La – Hà Đông – Hà Nội
- Địa chỉ xưởng: Km29, Đông Phương Yên, Chương Mỹ, Hà Nội
Chưa có bình luận nào














admin
Chất lượng tuyệt vời